第16回:『遂に到着・折り紙ランプ!! と『北向きが一番』なLA住宅事情とは?』 夏の平安編

第16回の今回は『迷子のフランス製・折り紙ランプと【用の美/建築】とは? Part1』夏の平安編と題しまして、2025年8月、9月中の『夏のひと時』を中心にお話ししてみたいです。
以下の要領で進めていきます。
今回は前半の2項目についてのお話です。
【8月&9月、泣き笑いの夏・秋】
*建築家SVさんからの再建案x2案ーーテーマは『風通しの改善』他
*フランスxアメリカ間で迷子? 『折り紙ランプ』の行方、、、
*義理の母の『95歳の誕生パーティー』に出席
*アメリカ式『老後の両親との付き合い方』を経験
*血圧上昇、己の健康に赤信号!! 運動不足と食べ過ぎが原因?
*妻とのアートセラピー、慣れないダンスのように、、、、(笑)
*『大屋根&格子スクリーン』追加で外観デザイン決定!!
*SVさんから住宅建築の経験談を聞き安堵:【用の美】
【10月&11月、怒涛の出来事】
*救世主現る!! PLT、公共土地買い上げトラスト(PTO)とは?
*建築許可用の提出物が『ほぼ』出そろいました。
*高いアパート家賃の解決策:ガレージ2階の賃貸物件に引っ越す?
*土壇場で立ちはだかる難題、『オーク(樹木)保護令』とは?
*樹木の医者【アーボレスト=樹護士】とは?
*もう一つの資金源?:南カ・エジソンを相手取った訴訟に参加、、、
*与えられた:コミュニティーと個人【奇人】主義を考える機会?
*困難の中にいる友人に私が出来ること、、、?
*病床の母(名古屋在住)に出来ること、、、、、?
*建築家SVさんからの再建案x2案---テーマは『LA,住宅は北向きで』他
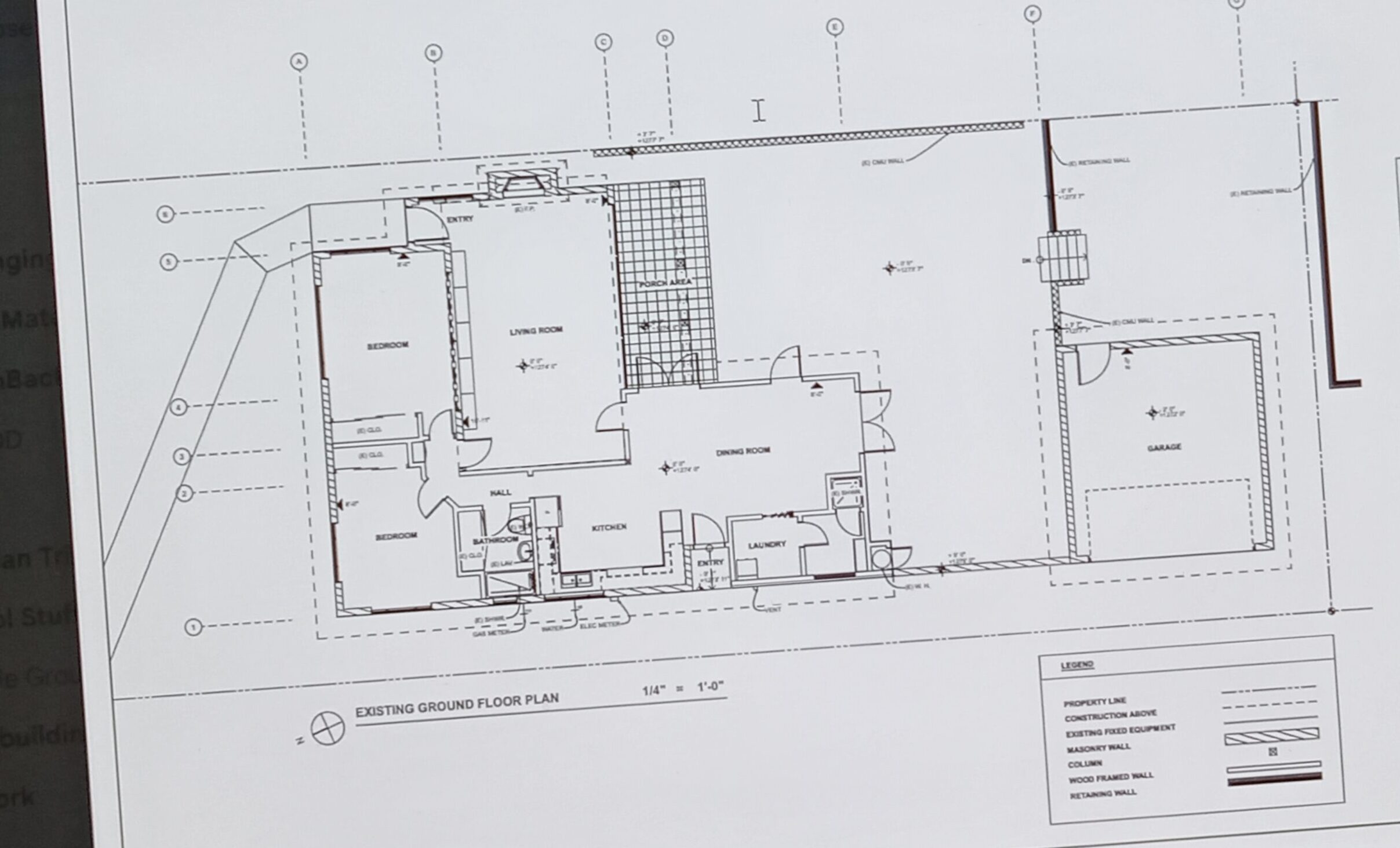
(カウンティーへ提出した被災前のオリジナルの平面図)



(建築事務所からの提案x2案)
*遂に到着、再建案x2!!
キリスト教徒の私は、ピンチや途方に暮れた時、
*まず神様に祈り・頼り、
*妻に聞き耳を立て、
*その次に心の支えになっていたのが、自宅でした。
猫のような私は、
人に付くより、家に付くタイプで、
自宅とは、つまり、
タヌキの穴倉のような、外で狩りや戦いをして、疲れたり、困ったとき、
*帰るところ、
*温かく包み込み守ってくれる理想郷のような
存在でした。
そんな自宅をなくした私は、
その自宅を再建するための建築家さんからの再建案が送られてくるのを、
内心、心待ちにしていました。
5月に契約を交わし、
*旧宅の平面図を作るのの協力したり、
*此方からの希望をリストにして送り、
*縁側、お風呂、などを加えた私のスケッチを送ったりして、
2か月が過ぎていました、
ちょうど私の誕生日の7月末に、
待ちに待った再建案(2案)が送られてきました。
メイルに添付された3つのファイルには、それぞれ、
手書きの走り書きのような平面図が書かれていました。
(仕事柄手書きの図面やラフ・スケッチに慣れている私はともかく、妻には難解でした、、、)
正直言って『2か月待ってこのクオリティー?』と思ってしまいましたが、
気を取り直して、確認した内容はこんな感じでした。
*再建案x2案の内容:
1、『風通しのよさ』を重視した間取り案で、
*南側の居間から北側の主寝室に流れる風通しと、
*キッチンのある東側から今を通って東に流れる、
ーーーーーーー>
風通しが素晴らしい間取りで、2x寝室が西側にまとめてあります。


2、『日当たりの良さ』にフォーカスした間取りで、
*南と西側にキッチン、ダイニングをまとめてあり、
*主寝室と、居間周辺は以前の間取りに近い感じです。
ーーーーーーーー>
肝心なお風呂が、北西の角に押しやられた感じが、いま一つ?

*妻と私の反応は?
どちらも特徴のはっきりしたコンセプトで、よく考えられていまして、妻も私も納得したデザインだと思いました。
しかしながら、ここに12年間住んできた立場的には、
*1案目の北向き志向の大きくつながった居間、ダイニングとキッチンのつながりには少し変化が大きすぎる感じで、ドギマギしてしまいました。
*2案目の、キッチンが南に動いて日当たりを有効に使うアイデアは、さらに南に広がる巨大な屋外デッキ部分もふくめて、すばらしいつながり感が魅力です。ただ、私たちの第一希望である、南橋に突き出した『和式お風呂』部分が真逆の北西の角に追いやられているのが残念でした。
*大きな反省点:
ここへ来まして、
大きな反省点が見えてきました。
妻と私は、SVさんに対しての要望をはっきりと書面で記して居なくて、そこかしこの立ち話などで、
『オリジナルの間取りはすごく気に入っていますが、南側の窓を増やし、濡れ縁デッキ、お風呂を加えたうえで、もうすこし風通しを向上させる方向で、いろいろデザインで遊んでみてください。』
といった内容の希望を切れ切れに伝えてきましたが、
もっとはっきりと箇条書きにして、明記して伝えるべきでした。
つまり、
気に入っているので変えてほしくないところ
*旧自宅の間取りはそのままで
*南向きの居間、北向きの主寝室などそのままで
新たに付け加えたいこと
*南側の窓を最大限に増やし、明るい居間とダイニング
*濡れ縁を模したデッキ部分
*南側に突き出すことで、庭を眺めることが出来る、半・露天のお風呂
*西勝手口周りにスライド式の格子の日よけを設置
SVさんに新たに加えていただきたい部分。
*『風通し』&『日当たり』の向上に向けて、提案してほしいです。
こんな感じではっきりと明記して
私たちの希望を伝えるべきでした。
*SVさんと直接面談して、重要な会議:
この辺で、一度面談して、私たちと、SVさん側の了解事項を一致させるため、
8月始めの土曜日のお昼に
アパートに出向いていただき、
妻の手料理を食べながら、2度目の直接会議を持ちました。
妻がツナメルト・サンドイッチを仕上げる間に、
私がSVさんを屋上に案内して、
そこのコミュニティー・ラウンジエリアで、あらかじめ私と彼とで、
私たちの立ち位置を説明して、
彼の提案について意見の交換を始めておきました。
す。しかしながら
こちらの立ち位置:
*提案1の風通し、提案2の日当たり、どちらもはっきりとしたコンセプトで、素晴らしいと思います。しかしながら、自分たちが実際に住む立場で見ると、どうしても変化が大きすぎて、
*結局、【焼失前の「我が家」の間取りと建具類の品質にいかに愛着があったか】ということを、確認する形になりました。
*すごく頑張ってもらった後で言いにくいのですが、元通りの間取りを尊重する方向でお願いしたです、
SVさんからの説明と見解:
*提案1につては、風通し以上に、
『北向きの日差しのすばらしさ』を感じてほしいです。
つまり、
*カリフォルニアでは一般的に、北向きの家が嗜好される傾向がありまして、
*特にハリウッド地区の山の中腹にある北向きの物件は、この北向きの日差しを居間や、寝室に持ってくることで、
*素晴らしい、必要以上に強い光を透過済みの優しく輪郭を強調するクリスプな景色を楽しめるので、一番人気なんです。
提案1はこの『北向きの日差しが』たっぷりと楽しめます。
私からの返答、
*なるほど以前から、夕方の自宅の寝室から望む北側の景色が素晴らしいと感じていました、そんな理由があったんですね、、、、
*しかしながら、長年旧宅の居間から見てきた景色が大好きな私たちにとっては、やはりその『南東側から差し込む午前中の日差し』が好みなので、そちらにこだわりたいです、むしろ北側のベッドルームからの日差しは今まで通りで満足しています。と柔らかくお断りしました。
真っ向からぶつかる意見を、どうすればいいか?
*その後も、『北向きの住宅の一般人気の説明』を続けるSVさんに対して、
*私達夫婦の好みは、
*一般的な傾向と違うことがよくあり、
*むしろ反対になることが多いし、中古市場で効果での販売のために、
*『一度きりの自宅のデザイン内容』に影響されたくないです。
とはっきり意見しました。
SVさんから、はじめに間取りは変えずにと言ってもらえればよかった、、、、
と言われ、
もっともだ、と感じ、、
私たちが、あらかじめ旧宅と同じ間取りでお願いしますと、明言すべきだったと、謝罪して、でも、この2つの提案を見て初めて旧宅の間取りのすばらしさの改めて築いたのは事実です、とも付け加えました。
其の後,階下のアパートに戻り、
妻の18番、ツナメルト・サンドとフルーツを食べながら、
妻の意見の確認と、
その他の細かい今後の道筋・段取りについて説明を受け、
3時前に解散となりました。
SVさんご夫婦は私たちと同じで、
大変な猫好きで、現在8匹の猫に餌をあげていて、
4匹は家の中で、飼い猫状態だそうです。嬉
追記1:
今回の時点で、SVさんの提案を部分的に受け入れたり、
生半可な返事をしてしまうことで、後々やり直したりすることになる可能性が無くなりすっきりしました。
云いづらい意見を、何とかはっきりと言えたことで、
今後の進展が速くなる気がしました。
追記2:
その後8月30日に、SVさんあてに
提出用の自宅平面図の最終段階の確認メールを出しました。
此方がその内容となっております。
!!!!!!!!!!!!!!!!!!!!!!!!!!!!!!!!!!!! COPY of the Email !!!!!!!!!!!!!!!!!!!!!!!!!!!!!!!!!!!!!
here are some thoughts and our wishes.
———->As we shared, we aren’t particularly in favor of making our house as big as possible.
* For the same reason, we would like to keep the size of the living room about the same size as the original without extending it to the south.
———> This is also good for keeping backyard space large enough to play around with more planning options.
——————>to have a tiled washing area including a shower head above.
yoroshiku onegai-shimasu!
*フランス、アメリカ間で迷子?『折り紙ランプ』の行方、、、、

*2か月かけ、大西洋を2往復半した小包!!
私が妻との結婚記念日をお祝いするため、
サプライズ・プレゼントとして手造り商品通販サイト【ETSY】を通じてフランスから取り寄せた『折り紙ランプ』は2か月が過ぎた7月半ばになってもいまだに到着していませんでした。泣
それまでの状況はこんな感じです。
1度目の往復:
*5月17日の記念日に確実に間に合うよう、4月半ばに発注、支払いを済ませる
*5月終わりに、USPSから『記入住所が間違いのため配達不能、差出人に返送』という通知が届きました。
*三日後に、USPSの配送センターに雨の中、徒歩にて出向き、詳細な情報を記入のうえ、追跡を依頼
*さらに二日後、センターににもう一度出向くも、既に差出人に向け返送され引き返すことはできないといわれる
2度目の往復:
*6月初めに、販売会社から小包が帰って来たとの連絡あり、送料を払うので、もう一度送ってほしい旨伝え、
*送料を払い発送してもらう、
*6月終わりに全く同じ、『記入住所が間違いのため配達不能、差出人に返送』というメールが届き、
*今度は配達したトラックを突き止め、返送の流れに乗る前に見つけ出そうと、再び徒歩で、USPSセンターに向かい、トラックを特定してもらい運転手に「センターでとり置いてもらうよう」ノートを残して帰りました。
*その後のセンター内での詳細はわかりませんが、追跡番号を使って、現在の位置を調べたところ、
*すでにUSPSの管轄からは外れ、フランス国営の『La Posto』のサイトで行程が管理されており、此方からは何の手の打ちようがありませんでした。
*今回も再び、フランスの販売会社に返送されてしまいました。
察するに、アメリカ側のUSPSのサイトを司るソフトウエアーとフランス側のソフトウエアーの相性が悪いか、すり合わせが足りないのか、なぜだか、「正しい住所を間違いだと判断して、受け取り側に再配送サービスや再配送手段のオプション選択の余地を与えることなしで、強制的に返送の回路に載せてしまう」のは、非常に理不尽で、
販売会社側の丁寧な応対がなければ早々にあきらめていたと思います。


(何十通もやり取りしたETSYの販売会社との質問ページ)
幸い、我慢強いカスタマーサービス係の人が、根気強く確認したり再発送料金をこちらに内緒で半額支払ってくださったり、、、元気付けてくださり、3度目の発送に挑戦、となりました。
3度目の正直、、、:
*その後2-3週間の時間をおいて、「常にだれかが受けとる事が可能な、私の仕事場の住所に発送していただく作戦」に変更し、送料こちら持ちでもう一度発送してもらい、
*7月初めの私がいない時に仕事場に遂に到着、その日の7時ごろ近所に住む同僚に届けてもらい、2か月半遅れで遂に妻の手元に!!!
この間、7月初めごろ、『サプライズでオーダーしたプレゼントが、フランスとアメリカの間を往復していて、まだ到着してない、』旨を妻に伝えたのみで、彼女はプレゼントが何なのかは知りませんでした。
翌日通常規格外の小さな電球を一緒に買いに行き、
15ワットの暖色の電球に火が入ると、
ムード満点な『和の光が』灯りました、
二人で手をたたいて喜んだの
は無理もありません、、、、、嬉





次回は、
義理の母の『95歳の誕生日』について
お話しさせていただきます。
おたのしみにーー
!!!!!!!!!!!!!!!!!!!!!!!!!!!!!!!!!!!! Translation in English !!!!!!!!!!!!!!!!!!!!!!!!!!!!!!!!!!!!
Episode 16: ‘Finally Arrived: The Origami Lamp!! And What’s the Deal with LA Housing Where ‘North-Facing is Best’?’ Summer Peace Edition
Episode 16 is titled ‘The Lost French Origami Lamp and What is [Functional Beauty/Architecture]? Part 1’ Summer Peace Edition. We’ll focus on ‘Summer Moments’ during August and September 2025.
We’ll proceed as follows.
This time covers the first two items.
【August & September: A Summer/Fall of Laughter and Tears】
*Two reconstruction proposals from Architect SV—Theme: ‘Improving Airflow’ and more
*Lost between France and America? The fate of the ‘Origami Lamp’…
*Attending my mother-in-law’s ‘95th Birthday Party’
*Experiencing the American way of ‘Dealing with Aging Parents’
*Blood pressure spikes, red flag for my health!! Caused by lack of exercise and overeating?
*Art therapy with my wife, like awkward dancing… (laugh)
*Exterior design finalized with additions: ‘Large Roof & Lattice Screen’!!
*Relieved hearing SV’s home-building experience: [Beauty in Function]
[October & November: A Torrent of Events]
*A savior appears!! What is PLT, the Public Land Trust (PTO)?
*Documents for the building permit are ‘almost’ all submitted.
*Solution for high apartment rent: Move to a rental unit on the second floor of the garage?
*Last-minute hurdle: What is an ‘Oak Tree Protection Order’?
*What is an arborist?
*Another funding source?: Joining a lawsuit against Southern California Edison…
*Given: An opportunity to consider community vs. individual [eccentric]ism?
*What can I do for a friend facing hardship…?
*What can I do for my mother in the hospital (living in Nagoya)……?
*Two reconstruction proposals from Architect SV——Themes include ‘LA, Housing Facing North’ and others
(Original pre-disaster floor plan submitted to the county)
(Proposals x3 from the architectural firm)
*Finally arrived, reconstruction proposals x2!!
As a Christian, when I’m in a pinch or at a loss,
*First, I pray to and rely on God,
*Then I listen to my wife,
*And next, my home has been my emotional anchor.
Like a cat, I’m the type to bond with a place rather than a person.
My home was, in essence,
like a raccoon’s den—a place to return to when hunting or fighting outside left me tired or troubled,
*a place to come home to,
*a warm, embracing sanctuary, an ideal haven.
Having lost that home,
I secretly looked forward to receiving the reconstruction proposal from the architect
who would rebuild it.
We signed the contract in May,
*helped create floor plans of the old house,
*sent a list of our wishes,
*and sent my sketches adding features like a veranda and bath.
Two months passed,
and right around my birthday at the end of July,
the long-awaited reconstruction proposals (two options) arrived.
Attached to the email were three files, each containing
a floor plan drawn in what looked like hastily scribbled handwriting.
(While I’m used to hand-drawn plans and rough sketches from my work, it was difficult for my wife to understand…)
Honestly, I thought, ‘After waiting two months, this is the quality?’
But I pulled myself together, and the details I confirmed were as follows.
*Contents of the 2 revised proposals:
1. A layout prioritizing ‘airflow’:
* Airflow from the south-facing living room to the north-facing master bedroom,
* And airflow from the east-facing kitchen through the current space to the east,
ーーーーーーー>
A layout with excellent airflow, grouping the 2 bedrooms together on the west side.
2. A layout focused on ‘sunlight’:
* Kitchen and dining area grouped together on the south and west sides,
* Master bedroom and living room area feel similar to the previous layout.
————————>
The crucial bathroom feels pushed into the northwest corner, which is a bit disappointing?
*My wife and my reaction?
Both concepts are distinct and well-thought-out; my wife and I both found them convincing designs.
However, from our perspective as people who’ve lived here for 12 years,
*The first plan’s north-facing orientation with its large, connected living room, dining area, and kitchen felt like too drastic a change, leaving us a bit flustered.
* The second proposal, with the kitchen moved south to better utilize sunlight, offers a wonderful sense of connection, especially including the large outdoor deck extending further south. However, it was disappointing that our top priority—the ‘Japanese-style bath’ protruding toward Minamibashi—was pushed to the opposite northwest corner.
* Major point of reflection:
At this stage,
a major point of reflection became clear.
My wife and I hadn’t clearly documented our requests to SV in writing. Instead, we conveyed our wishes piecemeal during casual conversations here and there, saying things like:
“We really love the original floor plan, but could you explore design options to add more south-facing windows, a covered deck, and a bath, while also improving ventilation?”
We should have clearly listed our requests in bullet points and communicated them explicitly.
In other words:
* Areas we liked and didn’t want changed:
* Keep the layout of our old home as-is
* Keep the south-facing living room, north-facing master bedroom, etc., as-is
* New additions we wanted:
* Maximize south-facing windows for a bright living/dining area
* A deck section modeled after a traditional veranda
* A semi-open-air bath protruding southward to overlook the garden
* Install sliding sunshades around the west service entrance
Additional requests for the SV:
* Please propose improvements for ‘airflow’ & ‘sunlight’.
We should have clearly stated our wishes like this.
*Important meeting with SV in person:
Around this time, to align our mutual understanding with SV,
we invited them to our apartment
on a Saturday afternoon in early August
for a second face-to-face meeting over my wife’s homemade lunch.
While my wife finished the tuna melt sandwiches,
I guided SV to the rooftop,
and in the community lounge area there,
SV and I had already explained our position
and started exchanging opinions about his proposal.
However,
Our Position:
* Proposal 1’s ventilation and Proposal 2’s sunlight are both excellent concepts with clear vision. However, from the perspective of actually living there, the changes feel too drastic.
* Ultimately, it confirmed just how attached we were to the layout and the quality of the fixtures in our home before the fire.
*It’s hard to say this after all the effort you put in, but we asked to respect the original layout.
Steve’s explanation and perspective:
*Regarding Proposal 1, beyond ventilation,
I want you to feel the ‘wonderful quality of the north-facing sunlight’.
In other words,
*In California, north-facing homes are generally preferred,
*Especially properties on the hillsides of Hollywood facing north. By bringing this northern sunlight into the living room and bedrooms,
*You can enjoy a stunning, crisp view with beautifully softened contours, filtered through an almost excessively strong light—making them the most popular choice.
Proposal 1 allows you to fully enjoy this ‘north-facing sunlight’.
My response:
* I see. I’ve always thought the view to the north from my bedroom at home in the evening was wonderful. So that’s why…
* However, since we’ve loved the view from our old living room for years, we still prefer that ‘morning sunlight streaming in from the southeast’. We’d like to stick with that. In fact, we’re perfectly satisfied with the sunlight in our north-facing bedroom as it is now. I gently declined.
How should one handle such a direct clash of opinions?
*Later, when the SV continued explaining the ‘general popularity of north-facing homes,’
*I clearly stated our preferences:
*Our tastes often differ from general trends,
*and frequently run counter to them. For effective resale in the used market,
*we don’t want to be influenced by the ‘one-time design of our home.’
SV remarked, “If only you’d said upfront you didn’t want to change the floor plan…”
I felt that was fair…
We apologized, acknowledging we should have explicitly requested the same layout as our old home. But we also added that seeing these two proposals had actually made us appreciate anew how wonderful our old home’s layout truly was.
After that, we returned to the apartment downstairs.
While eating my wife’s favorite tuna melt sandwich and fruit,
I confirmed my wife’s opinions
and received explanations about other detailed future steps and procedures.
We wrapped up before 3 PM.
Like us, Mr. and Mrs. SV are huge cat lovers.
They currently feed eight cats,
with four living indoors as house cats. Yay!
Addendum 1:
At this point, by partially accepting Mr. SV’s proposal
and avoiding a half-hearted response,
I felt relieved knowing there would be no need to redo things later.
By somehow managing to clearly voice difficult opinions,
I feel future progress will be faster.
Addendum 2:
Subsequently, on August 30th, I sent an email to SV-san
confirming the final stage of the home floor plan for submission.
This is the content of that email.
!!!!!!!!!!!!!!! !!!!!!!!!!!!!!!!!!!!! COPY of the Email !!!!!!!!!!!!!!!!!!!!!!!!!!!!!!!!!!!!!
Hi SV-san,
Thank you for the schematic drawing.
It looks great!
We saw it and examined it together and
here are some thoughts and our wishes.
Regarding the extended areas:
* We really want to extend the size of the guest room only so that we can appreciate nice morning sunlight through a narrow & tall window in the northeast corner. (Consequently, the size of the master bedroom was already large enough for us.)
———->As we shared, we aren’t particularly in favor of making our house as big as possible.
* For the same reason, I’d like to keep the living room size similar to its original dimensions rather than expanding it southward.
———> This also helps maintain ample backyard space, allowing for more diverse future planning options.
———> What I want to avoid is [a huge house with a tiny green space](already present via the ADU…).
* I want to use the permitted area to secure sufficient space for the afternoon area and, as you know, a tiled floor space where one can wash off outside in the afternoon.
* Also regarding permitted area usage, I want to use it for a roof extension covering the entire south deck above the living room.
Other Details and Future Considerations
* The first bathroom does not need a bathtub.
———–> A shower alone is sufficient.
* Is it possible to install a range and hood in the kitchen island space?
* Install a linen closet with shelves in the entryway, identical to the existing house.
* Expand the kitchen window area (only one window appears on the drawing).
* Need a tall, narrow window on the west wall of the bathtub area, not the sink area.
* Ensure sufficient space in the bathroom area
——————> To allow for a tiled laundry area and installation of an overhead shower head
* Install a clothes folding rack and storage shelves in the laundry room
* Adjust the position of the deck roof support columns: Move them back approximately 15cm from the edge
————– ———-> This is purely for aesthetic reasons, not functional…..(A car designer’s obsession (laughs))
* The position of the ventilation opening at the top of the partition wall between the living room and master bedroom on the drawings
can be discussed later…
The above are the agreed-upon items, so please incorporate them in the upcoming design phase.
My wife and I are both very excited about this house.
Thank you for attending.
We look forward to working with you!
B & Y
*Lost between France and the US? The whereabouts of the 『Origami Lamp』,,,,
*A package that took 2 months to make two and a half round trips across the Atlantic!!
To celebrate my wedding anniversary with my wife,
I ordered a 『Paper Folding Lamp』 as a surprise gift from the handmade goods online shop 【ETSY】 in France. Even by mid-July, two months later, it still hadn’t arrived. T_T
Here’s the situation so far.
First Round Trip:
*Ordered and paid in mid-April to ensure delivery by May 17th, our anniversary
*Late May: Received notice from USPS stating ‘Undeliverable due to incorrect address, returned to sender’
*Three days later: Walked to the USPS delivery center in the rain, provided detailed address information, and requested tracking
*Visited the center again two days later, but was told it had already been returned to sender and couldn’t be retrieved
Second round:
*In early June, contacted by the seller about the returned package; requested reshipment at my expense
*Requested they pay the shipping fee and send it again.
*At the end of June, received the same email stating ‘Undeliverable due to incorrect address provided, returned to sender’.
*This time, walked to the USPS center again to track the delivery truck, requesting they identify it before the return process began. Left a note for the driver asking them to “hold it at the center” and returned.
*Although details within the center remain unknown, tracking the current location via the tracking number revealed,
*The package had already left USPS jurisdiction and its route was being managed by France’s national postal service ‘La Poste’ site, making no action possible from our end.
*Once again, it was returned to the French seller.
Presumably, due to poor compatibility or lack of coordination between the software operating the USPS site and the French software, it is highly unreasonable that “the correct address is mistakenly judged as incorrect, forcing the package onto the return route without giving the recipient any option for redirection or reshipment.”
Without the seller’s meticulous follow-up, I would have given up long ago.
(Dozens of messages exchanged with the Etsy seller via their inquiry page)
Fortunately, a patient customer service representative persistently followed up, secretly covered half the reshipment cost… and encouraged me to try a third shipment.
The third attempt succeeded…:
*After that, I changed my strategy to “always ship to my workplace address where someone is always available to receive it,” requesting reshipments at my own expense every 2-3 weeks.
*In early July, while I was away, it finally arrived at my workplace. That evening around 7 PM, a colleague who lived nearby received it for me, and after two and a half months, it finally reached my wife’s hands!!!
During this period, around early July, I only told my wife that ‘the surprise gift I ordered is still traveling between France and the US and hasn’t arrived yet.’ She had no idea what the gift was.
The next day, we went together to buy a small, non-standard size light bulb,
and when the warm light bulb lit up at 15 watts,
the perfect atmosphere of ‘Japanese-style lighting’ illuminated the space.
It was only natural that the two of us clapped our hands in joy…
Joy
Next time,
I’ll tell you about
my mother-in-law’s 『95th birthday』.
Stay tuned——
Translated with DeepL.com
これはCTAサンプルです。
内容を編集するか削除してください。



















































