自宅再建・ガンプラ改造への道
Gunpla Burnt by Wildfire
自宅再建

山火事で自宅全焼の記録ーーーーー第25回:『建築構造士と建築家の名タッグ結成!& 仕事場の関税問題』流転の4月ー5月編 Forming a Powerful Architect & Engineer Team

(完成予想図を4つの画角で:キッチンから・居間から【1】・居間から【2】・ダイニングから)

 

 

第25回:『建築構造士と建築家の名タッグ結成!& 仕事場の関税問題』流転の4月ー5月編 Forming a Powerful Architect & Engineer Team

 

 

 

第25回目の今回は『建築構造士と建築家の名タッグ結成!& 仕事場の関税問題』流転の4月ー5月編  と題しまして、2026年4月、5月中『春先の出来事』を中心にお話ししてみたいです。

 

 

 

以下の3項目についてのお話です。

 

 

2026年4月・5月、流転する春季】

*構造士と建築家の最強タッグ結成ーーー>LA郡役場への提出書類の最終段階です!
*トランプ関税の余波ーーーー>仕事場の売り上げ激減問題

 

 

 

 

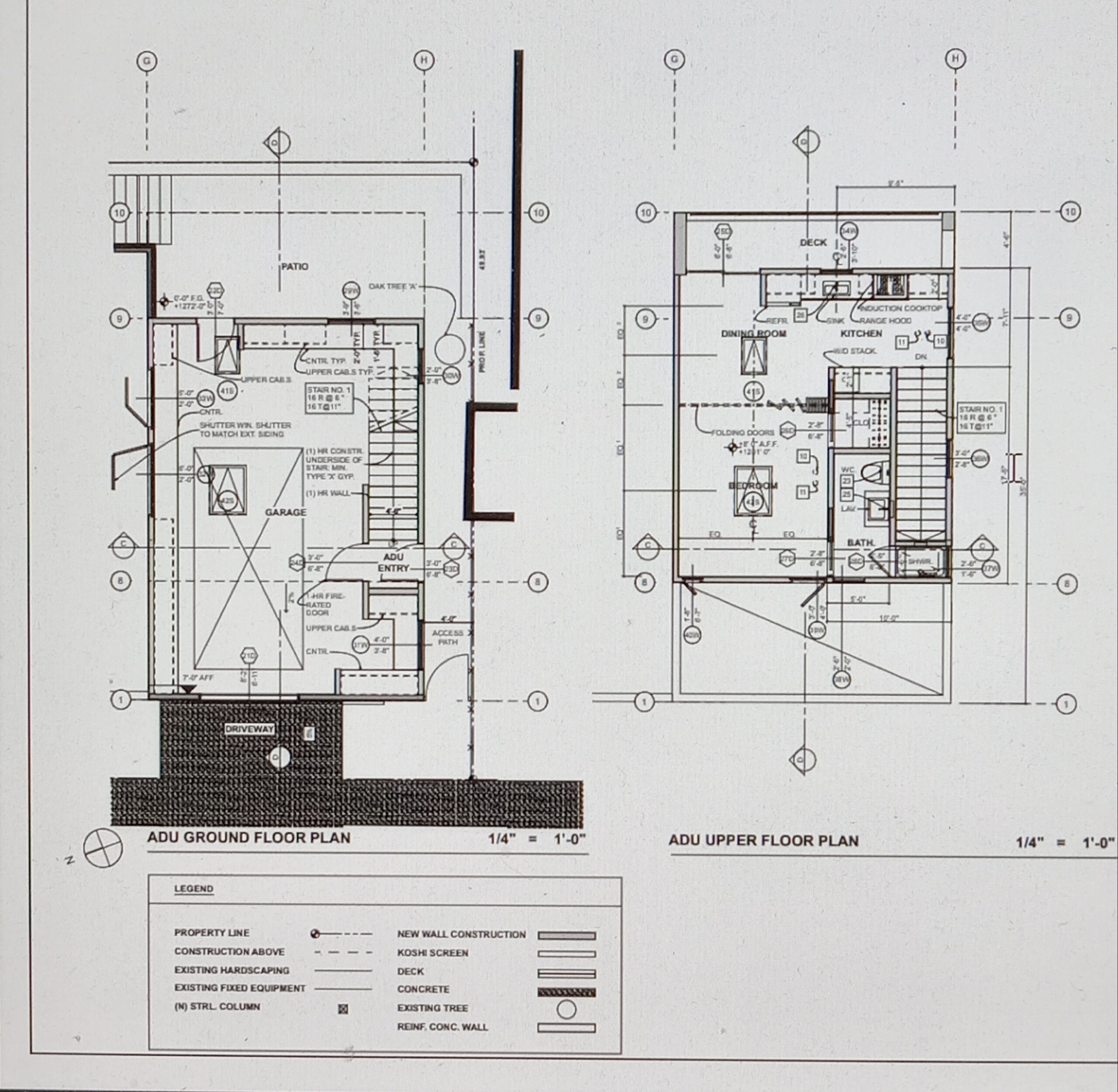
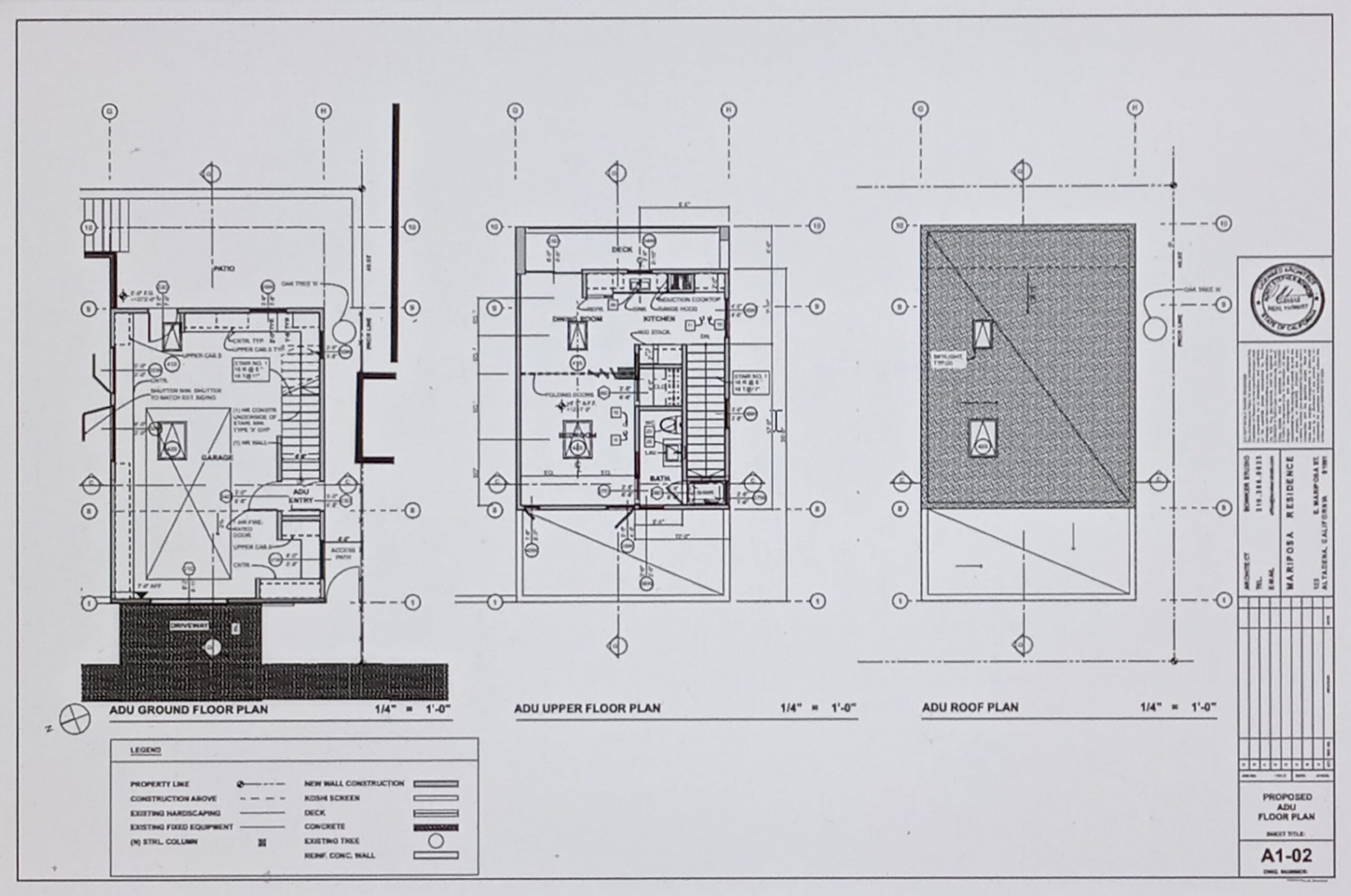
*構造士と建築家の黄金タッグ結成ーーーー>LA郡役場への提出書類の最終段階です!

 

(こちらが工学士に提出する、本宅部分、ガレージとその2階の賃貸物件の最終案【平面図と立面図】となります。】

 

 

 

 

 

 

 

ABOUT ME
折り紙キャット
愛知県生まれ、米国在住の立体造形好き、2025年の山火事で自宅、趣味で改造したガンプラ、フィギュア、ミニカー等のコレクションすべてを焼失。自宅再建と失くした物の買い直しについての日記です。
CTAサンプル

これはCTAサンプルです。
内容を編集するか削除してください。

関連記事