第19回:『資金調達の救世主、PLT とは?& ガレージ2階の賃貸物件に引っ越し?』怒涛の秋編

第19回の今回は『資金調達の救世主現る & 樹護士 VS 加州オーク保護条例の行方? Part1』怒涛の秋編と題しまして、2025年10月、11月中の『一進一退』を中心にお話ししてみたいです。
以下の要領で進めていきます。
今回は前半の3項目についてのお話です。
【10月&11月、怒涛の出来事】
*救世主現る!! PLT、公共土地買い上げトラスト(PTO)とは?
*建築許可用の提出物が『ほぼ』出そろいました。
*高いアパート家賃の解決策:ガレージ2階の賃貸物件に引っ越す?
*土壇場で立ちはだかる難題、『オーク(樹木)保護令』とは?
*樹木の医者【アーボレスト=樹護士】とは?
*もう一つの資金源?:南カ・エジソンを相手取った訴訟に参加、、、
*高額リースのアパート:契約延長の是非?
*与えられた:コミュニティーと個人【奇人】主義を考える機会?
*困難の中にいる友人に私が出来ること、、、?
*病床の母(名古屋在住)に出来ること、、、、、?
*救世主現る!! PLT、公共土地買い上げトラスト(PTO)とは?

#公共土地買い上げトラスト=救世主
この時期になっても、
n
n
*それを元に資金援助をできる人や寄付金の口座から相当の資金を集め、
その都度必要な分の資金を集めるのが主な仕事で、
買い上げてもらえるまで少し時間がかかるようです。
*固定資産税の支払いは、建物部分の評価額のみにかかるので、
私たちにとっては絶好な資金調達方法です。
資金の調達プロジェクトが動き出し、近日中に状況が知らせていただけるようです。
n
N

n
「
*LA群役場への建築許可用の提出物が『ほぼ』出そろいました。

#提出書類が出そろう:
n
n
n
妻の担当部分、
自宅の土地とその周りの標高差や勾配、樹木や遺構などを詳細に調査して地形図『Topogeographic Survey』に起こす作業が終わり、SVさんに提出したことで、LA群への再建認可をとるための提出物が「ほぼ」出そろいました。
11枚に上る公式書類の草稿が
SVさんからメールに添付された形で送られてきました。
その内容は、
*表紙兼、目次
*地形図:『Topographic Survey』
*建て増し部分(10%)を記した概略図:『Schematic Site Plan』
*焼失前の土地の利用状態の概略図:『As-Built Site Plan』
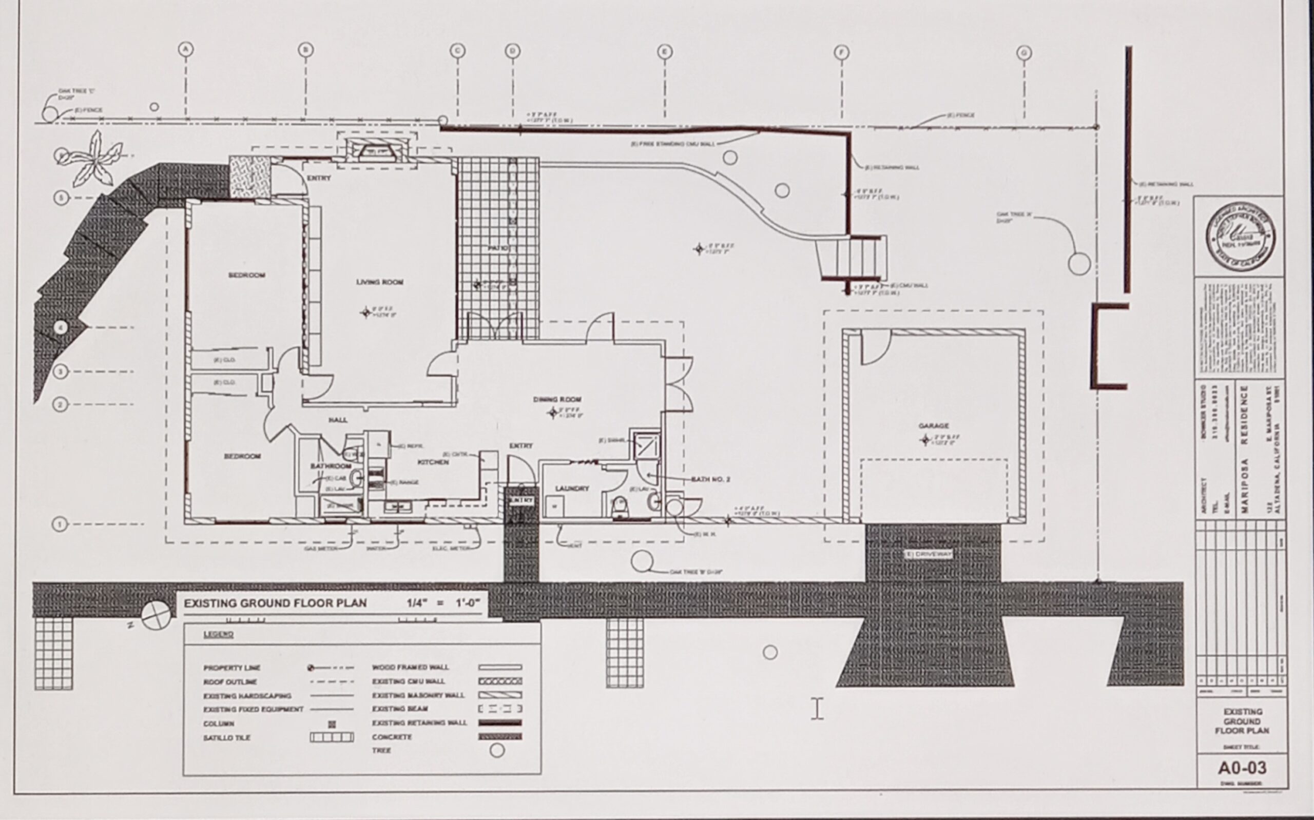
*焼失前の見取り図:『Exsisting Ground Floor Plan』
*焼失前の外観立面図:『Exisiting Exterior Elevations』
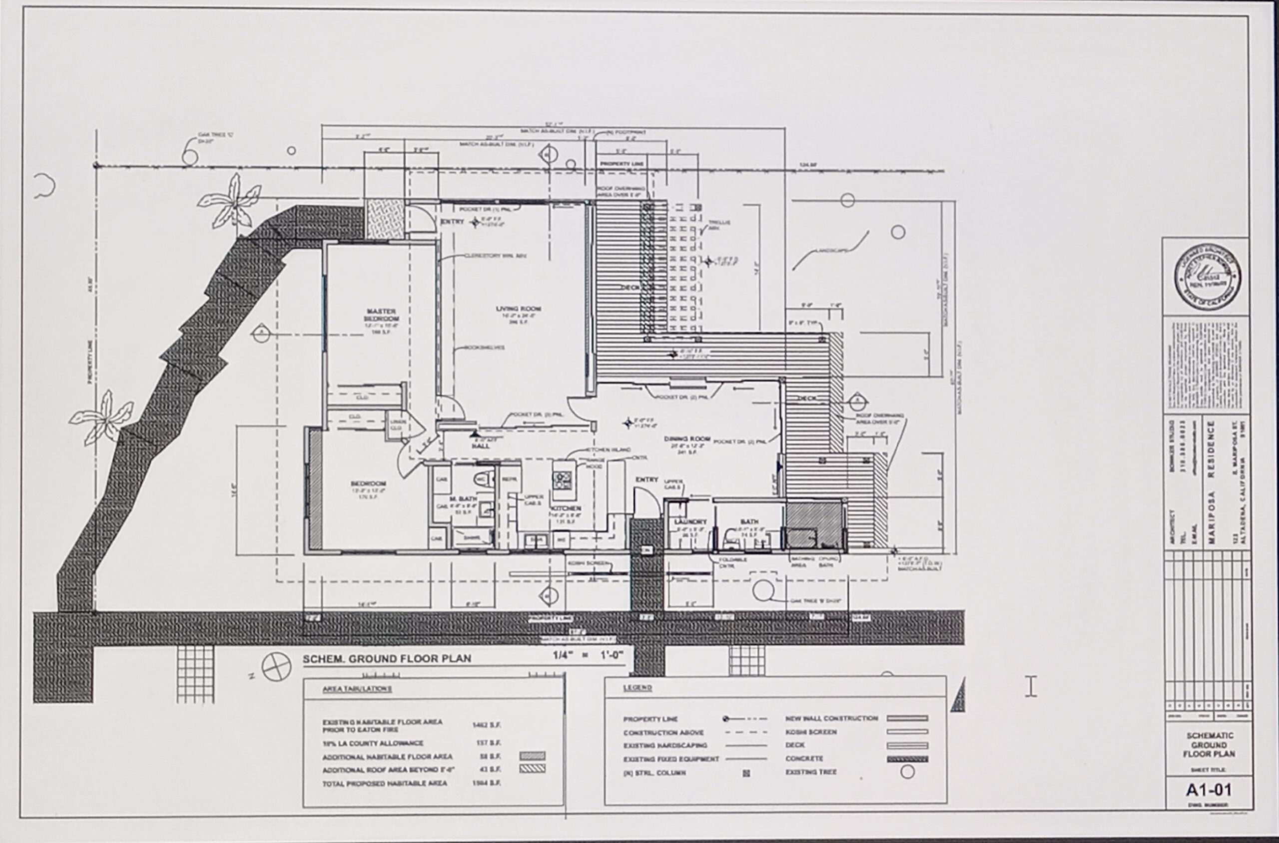
*再建家屋の見取り図:『Schematic Ground Floor Plan』
*再建家屋の屋根の配置図:『Schematic Roof Plan』
*再建家屋の外観立面図:『Schematic Exterior Elevations』
*再建家屋の断面図:『Schematic Sections』
*室内の詳細図(パース図):『Interior Vies/Details』
こんな感じになっております。
日本でもこちらでも自宅を新築した経験はないので、
立体造形が大好きな身としましてはすごくドキドキします。











この後、
キッチンの天井を低くして、掃除がしやすく、居間との高さを変えることで、変化をくわえたり、そのほか数点の小さな変更を加えましたが、やっと形になって一段落した感じです。
SVさんとの、変更点に関してのメールのやり取りはこんな感じでした。
!!!!!!!!!!!!!!!!!!!!!!!!!!!!!!!!!!!!!!!!! COPY !!!!!!!!!!!!!!!!!!!!!!!!!!!!!!!!!!!!!!!!!!!!!!!!!
Thank you for your hard work. You’re welcome!I really like the whole package of all 4 drawings on the main house. Thank you!By the way, I have a question.
Are these drawings totally final once we approve them? No. Your approval means we move on to Construction Documentation Phase and indicates we’re in agreement to proceed to next Phase.Or you can change minor details even after the county’s approval? Depending on how “minor” the changes are — some changes can occur after agency approval. Interior finishes or lavatory hardware can change for example but even a slight window location adjustment can not without going back to agency for additional review.I am asking because I just find minor detail changes for our likings.Like these points,* On the east view,
I prefer to have sets of those 3 windows and one above it moves toward the front door by 3 feet or so.
Yes, we can do this to be more like the original window. However, since 1994, we need to have 4’-0” of shear wall here for normal framing because it is a corner and exterior wall condition. If you’re ok with non typical framing, and the extra cost of replacing the seismic wall material with steel we can discuss with the structural engineer for a replacement shear wall device (perhaps the engineer would be ok with a Simpson Strong Wall instead, etc. Overall added cost can sometimes be between $2500-$5000. The cost will depend on the engineer’s recommendation and design and could be more than $5,000 in some cases if he would rather include a steel frame on this wall because we have already removed the shear wall on the south side of this wall with the new pocket door). The Strong Wall option means purchasing the steel material for the wall but also a different attachment and footing detail (also additional engineering costs to consider). This may be a good question for the structural engineer now. You should bring an engineer on board soon — we have the documents for them to bid on the project. Please let me know if you would like me to move forward with this modification despite cost or if you would like to discuss with engineer. This is a change we can make during the Construction Documentation phase. The other consideration is the centering of the pocket wall now that you have a glass door on the south side of this east wall.
* Sequentially,to have the door pocket move to the center of the living room and make the sliding door into 2 pieces.
The door pocket on the east Living Room wall is currently intentionally centered exactly between the built-in book shelf face a the Living Room wall on the south side (to match your original as-built condition) — it is centered on what would be considered, visually, the center of the Living Room if you are standing in the middle of the Living Room looking east. If you want the centered pocket to be wider to push the window closer to the front (on north side) we would need to reduce the width of the sliding glass door on the south side of the east Living Room wall to maintain centering of the pocket, etc. Am I understanding your request correctly?
* To get sufficient shading onto the living room,
have a trellis-like roof extension below the roof area above the pouce (living room). Yes, Can you confirm you want a trellis-like roof extension beyond the overhang on the south roof overhang at the Living Room Deck?* To make the smaller koshi slider wider to cover the pantry room window. Yes* To make the location of the hinges on the door between the dining room & living room.(Attaching the hinges to the structure on sliding door side) Yes* To make the wall area (next to a refrigerator) 2x wider and make the sliding door into 2 pieces. Yes, Can you make a sketch? Do you want two pocketing doors for the Master Bath? I’m unclear about “2 pieces?”* The location of the ofuro tub and a shower head. Please clarify (feel free to sketch on the drawings).
If these can be changed later times, please, go ahead and
submit these or move into section drawing and all.
These should be changed now. We have the Construction Documentation phase to complete before submitting to the county agencies.
Also could you explain the design process before starting to build?
Let me know what thoughts or requests you might have.
*高いアパート家賃の解決策 : ガレージ2回の賃貸物件に引っ越す?

#一端、ガレージ2階に隠居?
n
N
n
CLT(Community Land Trust)という
n
「救世主的」な資金の当てがついた事で、n
プラモデルの改造が可能となることです。嬉
n
n
n
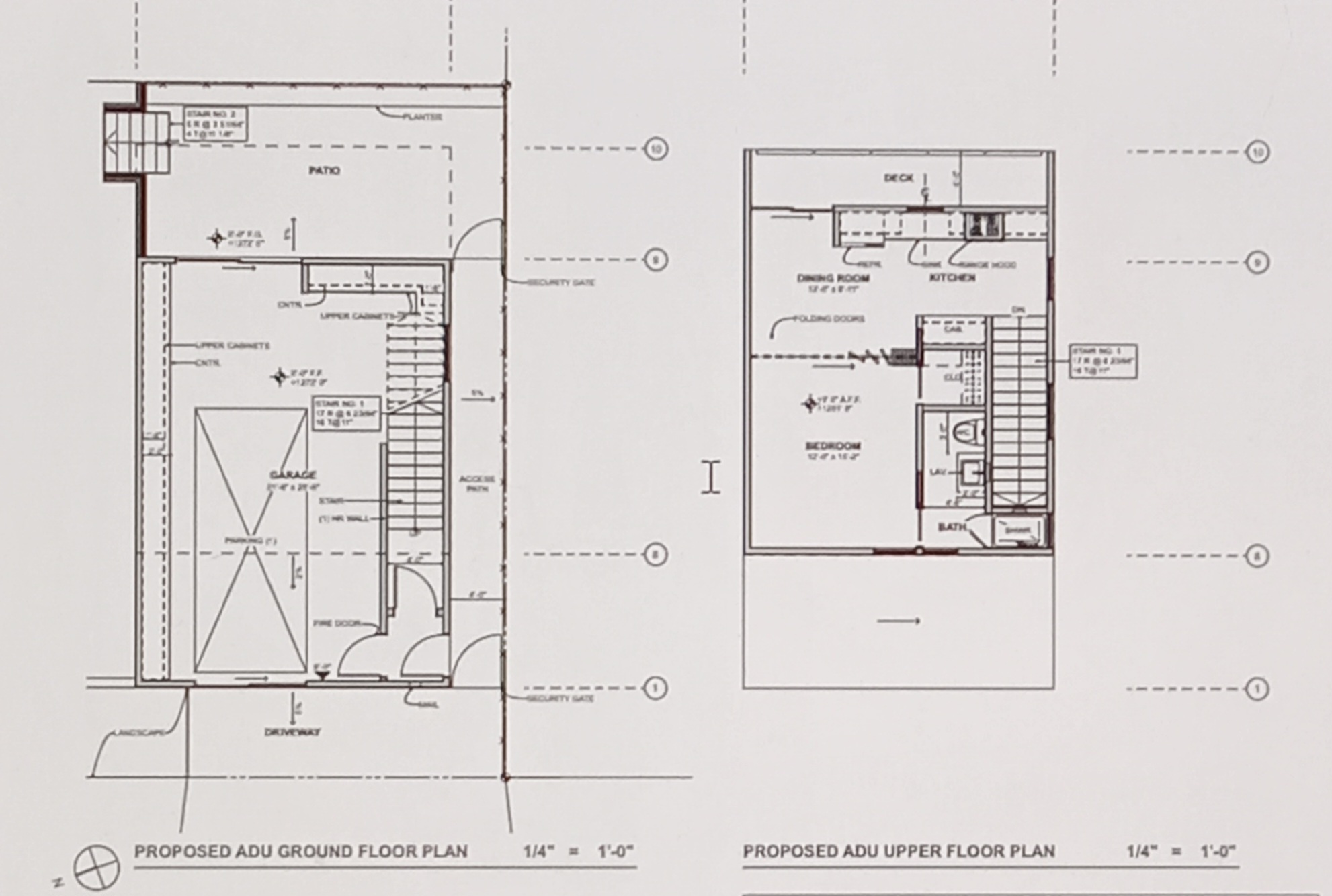
ガレージとその2階のADU(賃貸物件)部分の設計はこんな感じで、
*うまく近くに位置していますオークの木を避け、
*2階の住居部分は1LDKとして、
*なるべく採光をうまく演出して、良好な「日当たりデザイン」を、
*2階部分の上に覆いかぶさるオークの木で存在感を隠して、
*1階の東側にあったピクニックベンチを復活させたいです。


(こちらの平面図は第1原稿といった感じです。まだ変更の余地はありありです。)
この時点では、
つかの間、訪れた平安を妻と仲の良い知人と喜んでいました。
次に訪れた困難についてはまた次回以降に、、、
お楽しみに――
!!!!!!!!!!!!!!!!!!!!!!!!!!!!!!!!!!!! Translated in English!!!!!!!!!!!!!!!!!!!!!!!!!!!!!!!!!!!!
Episode 19: ‘The Fundraising Savior, PLT? & Moving to a Rental Space on the Second Floor of the Garage?’ The Stormy Autumn Edition
Episode 19: ‘The Savior of Funding Appears & Tree Doctor VS The Fate of California’s Oak Protection Ordinance? Part 1’ – The Turbulent Autumn Edition. This episode focuses on the ‘Back and Forth’ developments during October and November 2025.
We’ll proceed as follows.
This episode covers the first three items.
【October & November: A Storm of Events】
* A Savior Emerges!! What is PLT (Public Land Trust) and PTO (Public Trust Organization)?
* Building Permit Submissions are ‘Almost’ Complete.
* Solution to High Apartment Rent: Move to a Rental Unit Above the Garage?
* The Last-Minute Stumbling Block: What is the ‘Oak Tree Protection Ordinance’?
*What is an Arborist?
*Another Funding Source?: Joining the Lawsuit Against Southern California Edison…
*Given: An Opportunity to Consider Community vs. Individual [Eccentric]ism?
*What Can I Do for a Friend in Difficulty…?
*What Can I Do for My Mother in the Hospital (Living in Nagoya)…?
* A savior appears!! What is PLT, the Public Land Trust (PTO)?
#PublicLandPurchaseTrust = Savior
Even at this stage,
n
n
I was struggling because the budget for rebuilding my home was completely insufficient.
But I heard some good news: through a neighbor’s connection, I learned that funding might be available via a public organization called a CLT (Community Land Trust).
n
n
n
n
I promptly met with the representative of the Altadena branch and received a positive response.
N
n
My wife and I had previously discussed,
since we don’t have children, whether we could have our home treated as a trust property,
making it easier for the next young buyers to purchase?
This time, however, it turned out we were the ones receiving help instead.
n
n
n
n
Specifically,
n
* We submitted a petition requesting they purchase our home’s land at market price.
* Based on this, they will gather sufficient funds from individuals able to provide financial assistance and from donation accounts.
* They will then use the collected funds to purchase our home’s land.
n
This is the plan.
The organization itself doesn’t hold large amounts of funds at all times;
their main work involves gathering the necessary funds as needed each time.
n
It seems it will take a little time before they can complete the purchase.
n
n
n
n
n
* By allocating the received funds toward reconstruction costs,
n
our plan becomes feasible: starting construction first on the garage and the 1DK rental unit planned for its second floor (which were sources of concern), then moving there from the apartment upon completion (saving on high rent + closely observing the home’s construction process).
n
n
n
n
Other conditions presented by the organization (disaster relief measures) include:
n
* A minimum monthly rental fee (around $100) will be required.
* Property tax payments will only apply to the assessed value of the building portion,
reducing the cost to roughly half of what it was previously.
n
This is apparently the case,
making it an ideal funding method for us.
Upon receiving our funding request application,
the funding project will commence, and we should be informed of the status shortly.
n
n
n
Amidst our anxiety, this truly feels like a “savior” scenario,
and the sheer joy has given us renewed energy.
n
n
n
m
n
N
n
n
n
n
#A brief history of CLT spreading across the US:
n
N
n
n
n
n
Incidentally, the general conditions during normal times (not disasters) are:
* When selling your home, you can sell only the building portion to the new owner under the same conditions,
helping the next generation of young homeowners.
n
n
n
Through my wife’s involvement with the ‘Make Altadena Better Association’,
the couple (childless) who run the ‘Affordable Home Supply Association’
n were unaffected by this fire,
but they already support this system and have decided to donate their land portion, registering it.
n
n
n
This system was reportedly created in the 1950s to improve the situation where racial discrimination made it difficult for Black and other people of color to buy homes.
It has a history of being very active in the American South and East.
n
n
nRecently, it has become a significant movement in California too, with dozens of local organizations (NPOs) existing,
providing substantial help to younger age groups when purchasing homes.
n
n
n
n
n
n
*The documents for the building permit application to the LA County Office are ‘almost’ all ready.
#Submission documents nearly complete:
n
n
n
My wife’s assigned task—
detailed surveying of our home’s land, including elevation differences, slopes, trees, and ruins, then compiling it into a Topographic Survey map—is finished. Submitting this to SV means the documents needed for LA County’s rebuilding permit are “almost” all ready.
SV sent drafts of the 11 official documents
attached via email.
The contents are:
*Cover page and table of contents
*Topographic Survey
*Schematic Site Plan showing the addition (10%)
* Schematic site plan showing pre-fire land use: ‘As-Built Site Plan’
* Pre-fire floor plan: ‘Existing Ground Floor Plan’
* Pre-fire exterior elevations: ‘Existing Exterior Elevations’
* Reconstruction floor plan: ‘Schematic Ground Floor Plan’
* Reconstruction roof layout: ‘Schematic Roof Plan’
*Schematic Exterior Elevations of the Reconstructed House
*Schematic Sections of the Reconstructed House
*Interior Views/Details (Perspective Drawings)
This is how it’s shaping up.
Having never built a new home either in Japan or here,
as someone who absolutely loves three-dimensional design, I’m incredibly excited.
After that,
we lowered the kitchen ceiling to make cleaning easier and added variation by changing the height relative to the living room, along with a few other minor adjustments. It finally feels like it’s taking shape and we’ve reached a milestone.
*Solution to High Apartment Rent: Move to a Rental Property with a Two-Story Garage?
#Temporarily Retire to the Second Floor of the Garage?
n
N
n
With the prospect of “savior-like” funding secured through a CLT (Community Land Trust),
discussed with architect SV-san,
n
n
*urged him to expedite the design for the garage and its second-floor section,
*and decided to start construction before beginning work on the main house itself.
*The garage and its second-floor rental section should be completed by around the end of next year.
*If my wife and I move into that rental section, we’ll save on the high apartment rent…
n
n
This means I’ll finally have space for origami and
modifying plastic models. Yay!
(Hopefully, I might even restart my car design project…)
*Due to soaring material costs and
*carpenters’ labor shortages,
*delays are possible,
but it seems I won’t have to wait until the main house is finished in 2-3 years.
n
n
n
n
n
n
#Garage and Rental Unit Progress:
n
n
n
n
n
As of mid-October,
the design for the garage and its second-floor ADU (rental unit) section looks like this:
n
* Staggering the first and second floors,
* * My workspace and storage in the first-floor garage area,
* A 1LDK (one bedroom, living-dining-kitchen) in the second-floor living area,
* Maximizing natural light for a good “sunlight design,”
* Hiding the presence of the overhanging oak tree above the second floor,
* Restoring the picnic bench that was on the east side of the first floor.
n
n
n
n
(This floor plan is like a first draft. There’s still plenty of room for changes.)
At this point,
my wife and I were happily enjoying the brief peace that had come to us, along with a close friend.
As for the next hardship that arrived… well, that’s for another time…
Stay tuned――
Translated with DeepL.com
これはCTAサンプルです。
内容を編集するか削除してください。





















































