
第13回の今回は『雑記ブログの3個のカテゴリー & 再建資金の調達の苦労 Part1』と題しまして、2025年6月、7月中の『泣き笑い』を中心にお話ししてみたいです。
以下の要領で進めていきます。
今回は初めの1項目についてのお話です。
*新居のデザイン:『桂離宮の濡れ縁コンセプト』の謎?
*ブログのカテゴリーを作る?
*『立体造形』:自動車デザイン、好きな造形を紹介
*『食事レポート』:レストラン・レポート&自作レシピ、、、
*『自宅再建』:自宅焼失 / 再建にまつわる苦労や喜びの記録
*自家用、電気自動車の充電騒動、再発!!
*自宅再建資金の捻出、、、無理かも?
第13回:『新居のデザイン:『桂離宮の濡れ縁コンセプト』の謎?』



(<--修学院離宮の回廊部)

(<--桂離宮の回廊部)
*デザイン・コンセプトの探求:日本文化+北欧文化÷米モダン
自宅のデザイン・コンセプトを考えるにあたり、
住宅建築について色々調べていくうちに、
*ミッドセンチュリー建築ーーーー【イームス・デザイン】
*日本の伝統建築ーーー【桂離宮・修学院離宮】
*アメリカの住宅建築ーーー【フランクロイドライトの落水荘】
*北欧家具デザインーーーー【皆川朗のデザイン】
この4点のデザイン・テーマに光が当たりました。
【イームス・デザイン】
*現在も絶大な影響力を発揮する、モダン住宅建築、家具、食器、プロダクト、映像など広範な分野に流れる、装飾を配し、合理的で無駄のないバウハウスの流れを見事にアメリカ流に解釈
ーーーーー>外観スタイル、内装、家具に反映させたいです。


【桂離宮・修学院離宮の回廊=雁行配置】
*たび重なる増改築のたびに、ジグザグに折れ曲がった南側と西側の回廊部(雁行配置)が超個性的
ーーーーー>『濡れ縁コンセプト』として居間、ダイニング、浴室の廊下に応用します。


【フランクロイドライトの落水荘】
(住宅建築と自然の一体感を大事にしたフランクロイドの代表作、外観以上に居間部分の他の部屋とのジグザグな連動感が秀逸です。キッチンは極、小さいですが、、、)
ーーーー>キッチン、居間、ダイニングの連動感の参考にさせていただきます。


【皆川朗のデザイン】
(彼の大好きな北欧家具、テキスタイル、パターンや色使いすべて居心地のよさそうな、使う人の心の平安のためのデザインに敬意を表して、、、、)
ーーーー>妻の家族の出身地、北欧のデザインセンスを取り入れたいです。


この4つのテーマをまとめる形で、
【日本文化+北欧文化
÷アメリカン・モダン】
といったコンセプトが決まりました。
*コンセプトを実際の住宅に当てはめる過程です!
(日記用に買ったノートに点々の目盛りがあり、1目盛りを1フィートとすることで、スケールにあった手書きの図面が簡単にできました。)
n
M
N
n
n
実際の住宅に当てはめてみました。
n
n
n
、




延長した部分の隙間に装備したいです。)
n
m
m
n
m
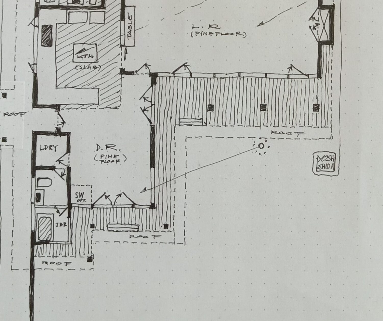
床面積に数えられないデッキ部分を、濡れ縁として居間、
ーーー>『桂離宮の濡れ縁コンセプト』





m
n
n
n
n
m
m
m
m
m
m
m
m
m
m
m
n
n
n
n
ーーーー>床から天井まで『Wall of Glasses 化』(嵌め殺し, スライド式?)



ーーー>和式の『お風呂場(庭を眺めて露天風呂?)』を併設
n


n
ーーーーー>スライド式の木製縦格子をサイド・ドア前とキッチンの窓の前に設置




*再建に際しての『不安と希望』
私たちの場合、全焼前の自宅の*間取りや、
n
*建具類のクオリティー、
*庭回りやガレージ付近の雰囲気等に
再建に際して、間取りはそのまま、
n
濡れ縁とお風呂、南側と西側の窓を増やす
n
のが主な変化となります。
n
n
後は、前回の増築・改築時に非常にハイセンスな建具を使って、塗装なども高品質に仕上げてあったので、そのクオリティーを今日の注文住宅市場で実現するためには、
n
n
n
現在3個存在するブログのカテゴリーに就ての経緯をご紹介させていただきたいです。
追記:参考までに、焼失以前の自宅の写真を載せておきます。
(@家具や絵画は前オーナーのものとなります。)












!!!!!!!!!!!!!!!!!!!!!!!!!!!! Translation in English !!!!!!!!!!!!!!!!!!!!!!!!!!!!!!!!!!!!!!!!!
This 13th installment is titled “Three Categories for My Miscellaneous Blog & The Struggle to Raise Reconstruction Funds Part 1,” and I’d like to focus on the “tears and laughter” of June and July 2025.
I’ll proceed as follows.
This time covers the first item.
* New Home Design: The Mystery of the ‘Katsura Imperial Villa Veranda Concept’?
* Creating Blog Categories?
* ‘Sculptural Design’: Introducing Favorite Automotive Designs and Sculptures
* ‘Food Reports’: Restaurant Reviews & Original Recipes…
* ‘Home Rebuilding’: Records of the Hardships and Joys Surrounding Home Destruction/Rebuilding
* Home Use, Electric Vehicle Charging Drama, Recurring!!
*Funding the Home Rebuild… Might Be Impossible?
Episode 13: ‘New Home Design: The Mystery of Katsura Imperial Villa’s Veranda Concept?’
(<--Shugakuin Imperial Villa’s Corridor Section)
(<--Katsura Imperial Villa’s Corridor Section)
*Design Concept Exploration: Japanese Culture + Nordic Culture ÷ American Modern
While considering the design concept for my home,
and researching various aspects of residential architecture,
*Mid-Century Architecture——【Eames Design】
*Traditional Japanese Architecture——【Katsura Imperial Villa・Shugakuin Imperial Villa】
*American Residential Architecture——【Frank Lloyd Wright’s Fallingwater】
*Nordic Furniture Design——【Akira Minagawa’s Design】
These four design themes came into focus.
【Eames Design】
*Exercising immense influence to this day, it masterfully interprets the Bauhaus tradition—characterized by minimal ornamentation, rationality, and efficiency—into an American context, permeating diverse fields including modern residential architecture, furniture, tableware, products, and film.
ーーーーー>I wish to reflect this in the exterior style, interior design, and furniture.
【Katsura Imperial Villa & Shugakuin Imperial Villa Corridors = Zigzag Arrangement】
*The uniquely zigzagging south and west corridors (zigzag arrangement), formed through repeated additions and renovations, are exceptionally distinctive.
ーーーーー> We will apply this as the ‘veranda concept’ to the corridors connecting the living room, dining area, and bathroom.
【Frank Lloyd Wright’s Fallingwater】
(Wright’s masterpiece emphasizing residential architecture’s unity with nature; the zigzag interconnection between the living area and other rooms is more outstanding than the exterior. The kitchen is extremely small, though…)
ーーーー> We will reference this for the interconnected feel between the kitchen, living room, and dining area.
【Akira Minagawa’s Design】
(Paying homage to his beloved Scandinavian furniture, textiles, patterns, and color palettes—all designed for comfort and the user’s peace of mind…)
────────> We wish to incorporate the design sensibility of Scandinavia, the homeland of my wife’s family.
To synthesize these four themes,
【Japanese Culture + Nordic Culture
÷ American Modern】
became our final concept.
*Applying the concept to the actual house!
(I bought a dotted-ruled notebook for journaling. Using one dot per foot, I easily created scaled hand-drawn floor plans.)
n
M
N
n
n
We applied the themes decided in the previous chapter
to the actual house.
N
n
n
n
n
n
1. Add a ‘zigzag wet deck’ surrounding the living room and dining area
2. Convert south-facing windows in the living room and dining area into floor-to-ceiling ‘Wall of Glass’
3. Change the men’s shower to a Japanese-style ‘bath area (with garden views like an open-air bath?)’
4. West Sun Countermeasure = Installed sliding wooden vertical louvers in front of the door and kitchen window,
1. Since extensions under 10% get rebuilding permits fast, we expanded the guest bedroom and living room each 1 foot north and south, respectively, and
n
n
n
b
b
n
n
n
n
n
n
n
n
We will add deck areas, which do not count toward floor space, as covered verandas around the living room and dining room.
ーーー> ‘Katsura Imperial Villa’s Covered Veranda Concept’
n
m
m
n
n
n
n
n
m
n
n
n
n
2. Replace the south-facing windows in the living room and dining area from wood to aluminum,
ーーーー> Creating a ‘Wall of Glass’ from floor to ceiling (fixed panes, sliding?)
n
n
n
n
n
n
n
n
n
n
n
n
n
n
n
n
n
n
n
n
n
n
n
n
3. Extend the current men’s shower area 3 feet southward,
→ Adding a Japanese-style ‘Bath Area (open-air bath overlooking the garden?)’
n
n
b
n
n
n
n
n
n
n
n
n
n
n
n
n
n
n
n
n
m
m
m
m
n
n
n
m
m
m
m
m
m
m
m
m
m
m
m
m
m
m
m
m
m
m
m
m
m
m
m
4. To mitigate the intense summer western sunlight,
────────> Installed sliding wooden vertical louvers in front of the side door and kitchen window
(This itself becomes the most eye-catching design accent when viewed from the west.)
n
n
*‘Anxieties and Hopes’ Regarding Reconstruction
Regarding reconstruction,
in our case, we were very satisfied with
*the layout of our home before it burned down,
n
n
*exterior and interior colors and shapes,
*the quality of the fixtures,
*the atmosphere around the garden and garage area, etc.
n
n
We were extremely satisfied with these aspects.
Therefore, for the reconstruction, the floor plan remains unchanged.
n
The main changes are adding a covered porch and bath, and increasing the windows on the south and west sides.
n
n
n
n
n
Additionally, during the previous expansion and renovation, we used very high-end fixtures and achieved a high-quality finish with the painting. To achieve that same level of quality in today’s custom home market,
n
it seems a significantly higher price per square foot would be required,
n
n
n
n
and that is our biggest concern.
Next time, titled ‘Creating Blog Categories?’,
I’d like to share the background behind the three existing blog categories.
Stay tuned!
P.S.: For reference, I’ve included photos of our home before the fire.
(Furniture and paintings belong to the previous owner.)
Translated with DeepL.com
これはCTAサンプルです。
内容を編集するか削除してください。


















































